全國統一服務熱線:40000-57-892
電 話:0512-68364119
0512-52574119
傳 真:0512-68361191
手 機:18021634119
18151099119
聯系人:吳經理
郵 箱:jsqiangdun@163.com
地 址:江蘇省常熟市辛莊鎮桃園村
高壓細水霧分區控制閥箱的操作說明
高壓細水霧分區控制閥概述
高壓細水霧分區控制閥包括開式分區控制閥組由電動截止閥、手動球閥、壓力開關、壓力表、箱體及連接管件等組成。主要功能是接收火災報警控制器的控制信號后,開啟相應分區的電動截止閥向防護區釋放細水霧實施滅火。在噴頭正常噴放細水霧時由壓力開關向火災報警控制器發出反饋信號。
高壓細水霧分區控制閥組的應用
根據應用方式的不同,開式分區控制閥組分為兩種應用方式:
開式系統--由開式分區控制閥+開式噴頭組成
預作用系統--由開式分區控制閥+閉式噴頭組成
分區控制閥過流部件和箱體均為奧氏體不銹鋼。開式閥組與閉式閥組外觀一致,內部結構及功能不同。
高壓細水霧分區控制閥安裝
1、高壓細水霧分區控制閥上配有扣押螺母和焊管,管道與焊管用氬弧焊焊接后,采用活接頭連接方式與閥組進、出水接口連接。
2、高壓細水霧分區控制閥組應安裝在防護區附近,并安裝在防護區外,便于火災發生時的應急操作、檢查和維修。
3、高壓細水霧分區控制閥的安裝高度宜為1.2~1.6m,分區控制閥組安裝分為明裝和暗裝,暗裝時,一定要檢查好接頭處密封良好后再做裝飾。
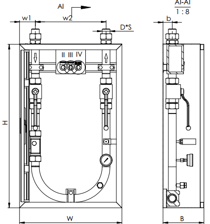
高壓細水霧分區控制閥組尺寸示意圖如下:

高壓細水霧分區控制閥安裝尺寸表
|
型號 |
外形尺寸(W*H*B) |
w1 |
w2 |
b |
D*S |
|
XSW-FZ 15/10 |
550*880*220 |
85 |
380 |
44.3 |
22*2.5 |
|
XSW-FZ 20/10 |
550*880*220 |
85 |
380 |
44.3 |
28*3.0 |
|
XSW-FZ 25/10 |
550*880*220 |
85 |
380 |
49.8 |
34*3.0 |
|
XSW-FZ 32/10 |
550*880*220 |
85 |
380 |
49.8 |
42*3.5 |
|
XSW-FZ 40/10 |
550*880*220 |
85 |
380 |
63 |
48*4.0 |
|
XSW-FZ 50/10 |
550*880*220 |
85 |
380 |
63 |
60*5.0 |
高壓細水霧分區控制閥控制方式及接線
高壓細水霧分區控制閥具有自動、手動和機械應急控制方式,但在通電狀況下嚴禁用機械應急方式強行開啟閥門,否則可能造成設備故障或損壞。
a. 自動控制:需要連接適合火災報警控制器的控制模塊,以控制閥組的開啟動作和反饋信號給火災報警控制器。
b. 手動控制:在火災報警控制器失效的情況下使用,由分區控制閥組直接啟動泵組,噴灑高壓細水霧滅火。
c. 機械應急:在電動截止閥發生故障時使用,手動開啟電動截止閥。
開式高壓細水霧分區控制閥接線圖:

- 各位朋友,下面的相關文章可能對您很有幫助!






